20FT Prefabricated Construction Site Office Container Mobile Portable Home Cabin Container Office

Still deciding? Get samples of $ !
Order Sample

Product Description

📋 Basic Information
Model NO.
DCHO005
Material
Steel Structure
Name
Container House
Size
W 3m * L 5.95m * H 2.8m
Structure
Q235B Galvanized+Powder Coated
Wal Panel
EPS/Rock Wool/Glass Wool Sandwich Panel
Floor Board
18mm Thickness MGO Board
Usage
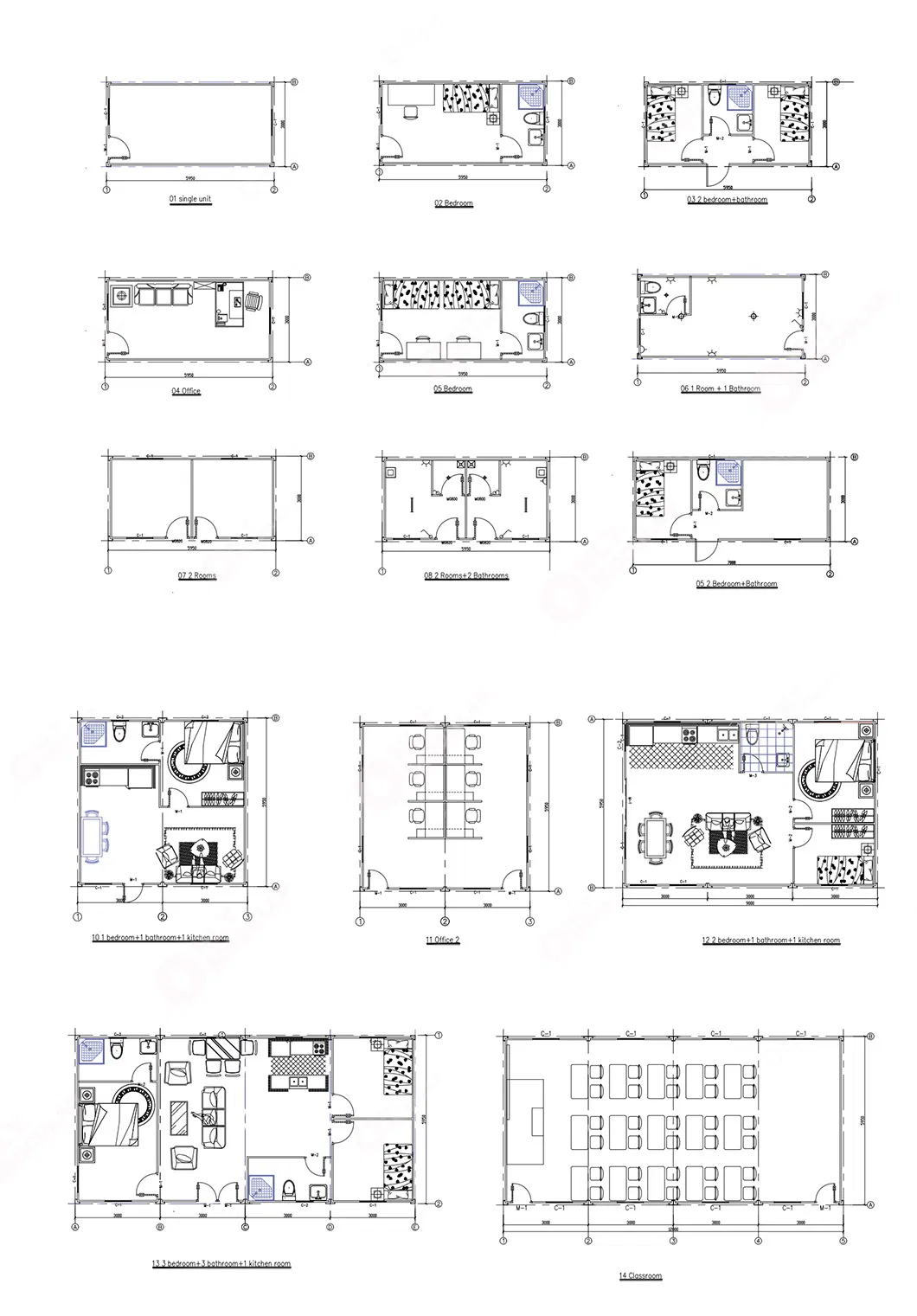
Warehouse, Villa, Dormitories, Temporary Offices, Workshop, Living Room
Certification
ISO, CE
Warranty
1 Year
📍 Product Description
Container Office
Specialized in Designing, Manufacturing, Marketing and Construction of the prefabricated houses, including office buildings, apartments, canteen, toilet & shower, warehouse, guard house, fence and other materials. Main products are container house, prefab house, portable toilet and warehouse. Products can be transported and relocated to different places.

With excellent performance of efficiency and eco-friendly, these solutions are widely used for serving Construction Site, Mining Site, Oil Field, School, Refugee rescue, and Personal use.
Detail 1 Detail 2
📷 Detailed Photos
Structure Interior Standard Material
Standard materials can be upgraded, such as upgrading to cement fiber flooring, higher quality doors, higher quality windows, and enhanced wall panels.
Container Specification
NO. Items Materials Descriptions Qty
1 Bottom Frame Bending steel plate 160*55*2.3*5630mm 2 pcs
2 Top Frame Bending steel plate 160*55*2.3*5630mm 2 pcs
3 Corner fittings Steel plate 160*160*160*4.0mm 8 pcs
4 Column Bending steel plate 160*160*2480*2.3mm 4 pcs
5 Wall Panel Rock wool panel 50mm Double Color-coated steel Full set
6 Floor MGO Board 18mm fiber cement board 5 set
7 Door Steel Door 925*2040mm, white color 1 set
8 Window PVC windows PVC security double window 1100*925mm 2 set
🌍 Global Cooperation & Experience
Adhering to the principle that Quality and Service Comes First, global agencies and engineers are available for support. Target regions include South-east Asia, South America, Africa, Middle East, and Australia. Extensive experience in government cooperation includes projects with the governments of Maldives, India, Malaysia, East Timor, Turkey, Philippines, Tanzania, and Senegal.
Global Project 1 Global Project 2 Global Project 3
📺 Packaging & Shipping
In order to better save container space, factory standard container loading is optimized as shown in the following procedures:
Loading 1 Loading 2 Loading 3
Packaging Process Shipping
Frequently Asked Questions
Q1 What products do you offer?
We focus on prefabricated houses, such as labor camps, container houses, steel structure warehouses, and modular offices.
Q2 What is your payment term?
For standard products, a 30% deposit is required, with the balance paid before delivery. Customized products depend on the design.
Q3 How is your after-sales service?
We offer 24-hour after-sales service. For installation, we provide drawings and videos. If required, engineers can be sent to guide local workers.
Q4 What information is needed for a quote?
If you have a drawing, please provide it along with material specifications. Otherwise, tell us the usage and size, and we will design it for you.
Q5 What are the typical applications for these containers?
They can be used for offices, homes, hotels, clinics, dormitories, camps, toilets, shops, storage rooms, and hospitals.
Q6 Do you have a Minimum Order Quantity (MOQ)?
For standard products, we do not have a minimum order quantity requirement.

Related Products